Sketch-HOME
Архитектурно-дизайнерская мастерская
Главная
Картотека проектов
Перепланировка
Стоимость
Контакты
More
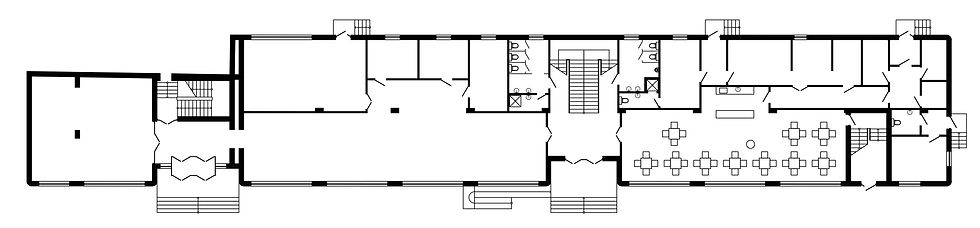
Project 13
Площадь застройки: 750 м2
Общая площадь - 1500 м2
Год: 2022
Стиль: эклектика, современный
Город: Шуя
Планировка
Layout
Площадь
Жилая площадь
Этажность
1500 м2
0 м2
2